部门动态

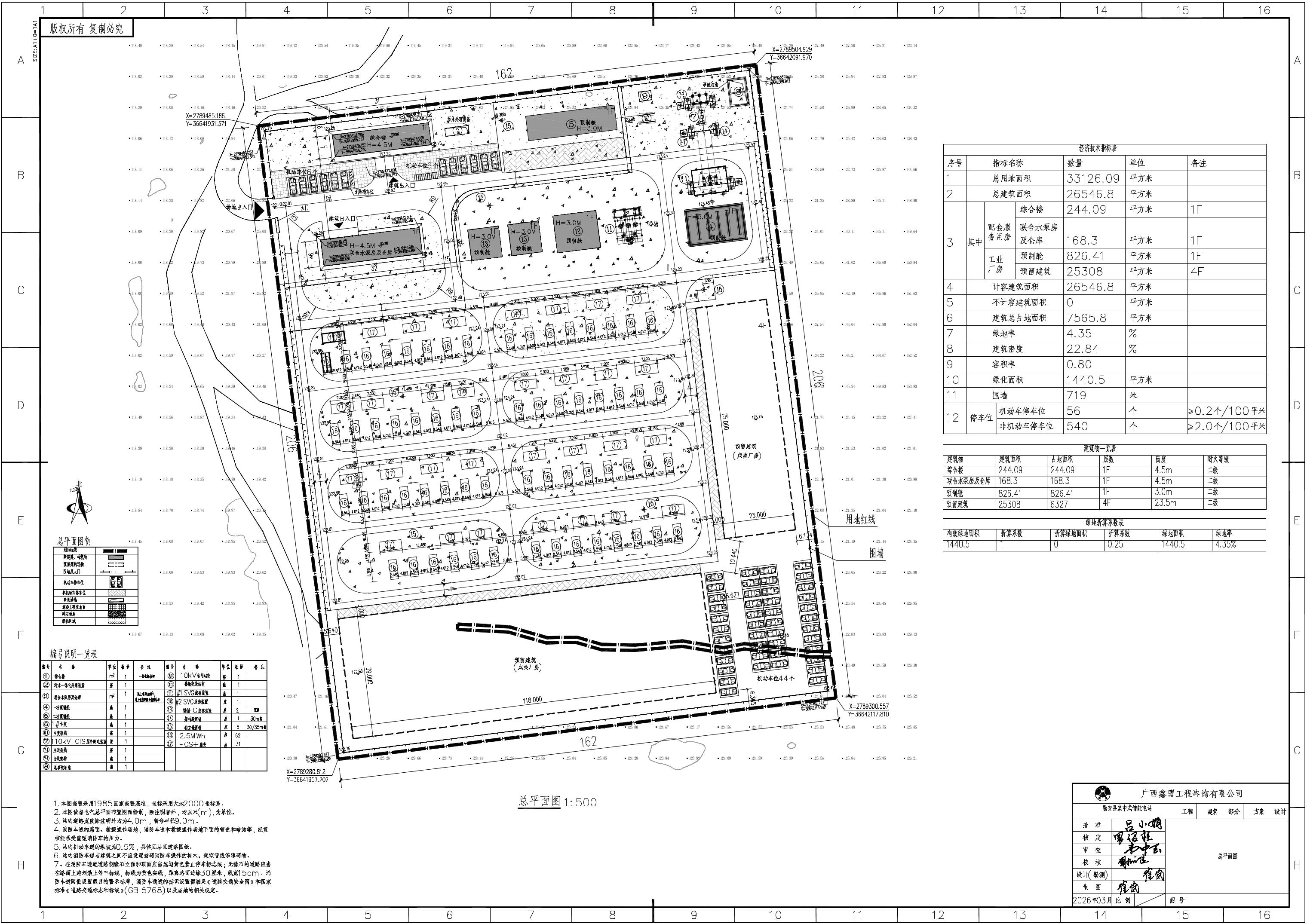
融安县集中式储能电站项目批前公示

来源:融安县自然资源和规划局  发布日期:2026-03-31 15:40  

 现对“融安县集中式储能电站项目”方案进行批前公示,公示期从2026年3月31日至2026年4月6日。相关利害关系人对上述方案的意见,可以书面阐明观点理由的形式提出。有关书面意见请于2026年4月6日前送至融安县自然资源和规划局政策法规科,联系电话0772-8116045。